The Technical Edge

15-33 Jennings Cres, Red Deer, AB T4P 0A2
403-358-9089

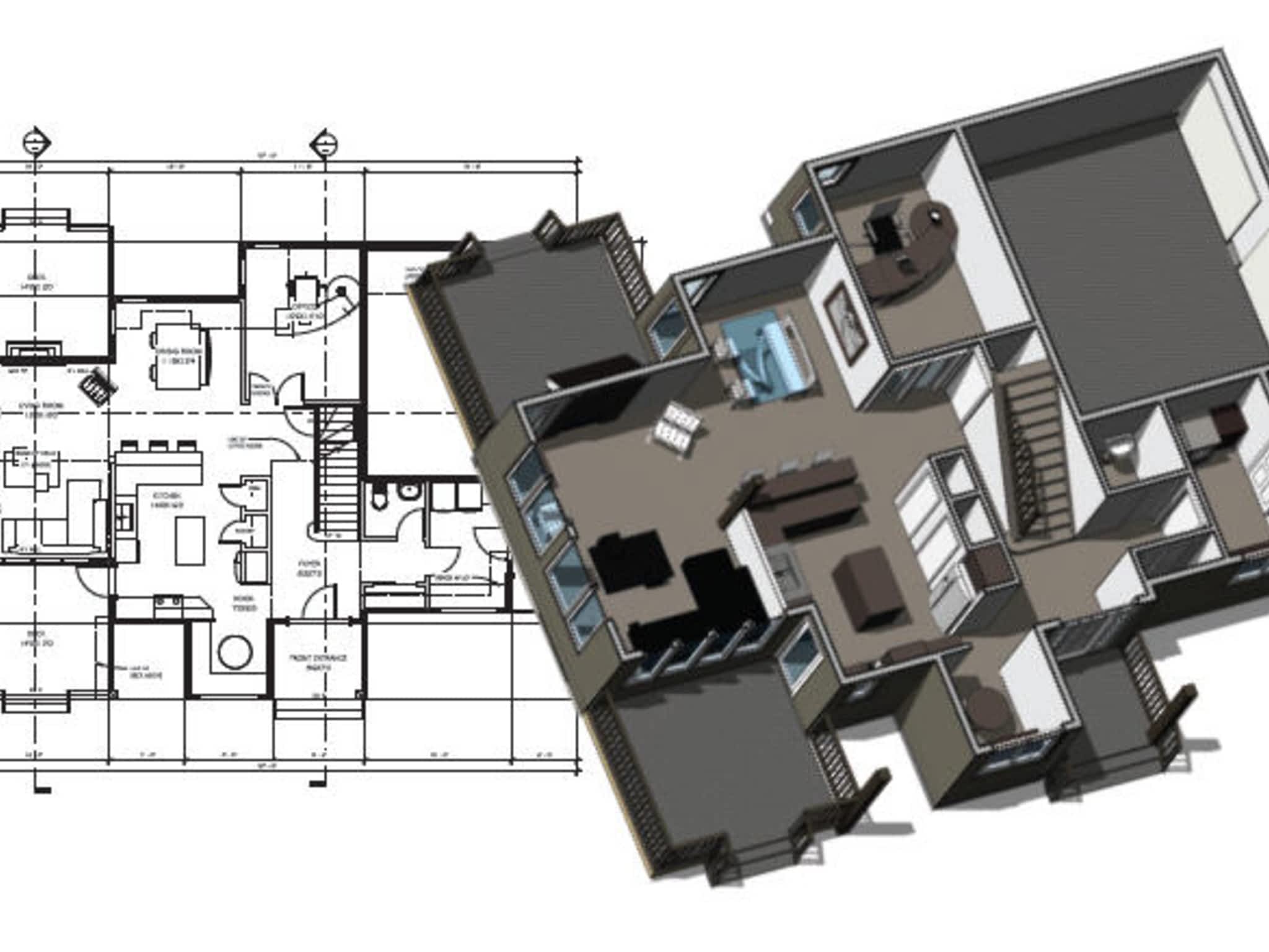
The Technical Edge in Red Deer can make your dream home a reality. We specialize in 3D custom home design and construction drawings. We will create preliminary 3D floor plans and exterior elevations for you to review during our consultations. These can be modified until the plans have perfectly captured your visions. I have had the privilege of working on hundreds of one-of-a-kind, unique homes, executing accurate design and construction drawings for planning, estimating, permits, and construction. I will combine my years of experience, passion and professionalism to design the home of your dreams. ____________________________________________________________________________ *** 3D technology will allow you to see your house inside and out *** ____________________________________________________________________________

The Technical Edge - 15-33 Jennings Cres, Red Deer, AB

3D CUSTOM HOME DESIGN AND CONSTRUCTION DRAWINGS. I also welcome any builders requiring 3 Dimensional drawings for their customers.

Opening Hours

Monday 9:00 am - 5:00 pm

Tuesday 9:00 am - 5:00 pm

Wednesday 9:00 am - 5:00 pm

Thursday 9:00 am - 5:00 pm

Friday 9:00 am - 5:00 pm

Appointment Only

Specialities

  • 3D Custom Home Design
  • Custom Drawings
  • Renovations
  • Construction Drawings
  • Multi-Family Homes And Additions
  • Site Evaluations

Products and Services

  • 3d Modelling
  • 3D Custom Home Design
  • Custom Design
  • Construction Drawings
  • Additions
  • Townhouse
  • Small Commercial
  • Renovations Drafting
  • Home Plan
  • Commercial Drafting
  • Blueprint
  • Architectural Drafting

Methods of Payment

  • Cash
  • Cheque
  • Interac
  • Email Transfer

Languages Spoken

  • English

The Technical Edge - Photos